it en es de ru
 
 
 
    

Appartamento in fase di ristrutturazione, in vendita,Cassino.

€ 155.000,00
Tipologia: Appartamento      
Mq: 75      
Locali: 3      
Bagni: 2      
Tipo proprietà: Intera proprietà      
Riscaldamento: Autonomo      
Stato: In costruzione      
Box auto: Posto auto      
Giardino: No      
Ascensore: Si      
Balconi: Si      
Regione: LAZIO      
Provincia: Frosinone      
Località: 03043 Cassino      
Indirizzo: Via Tommaso Campanella      
Descrizione
 
Gallery
 
;
Listini
 
u
Mappa
 
Video
 
Commenti
 
=
File
 
Contatti
 
Contatti 2
 
Appartamento in fase di ristrutturazione, in vendita,Cassino.

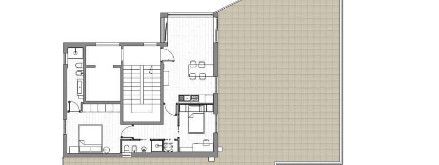
Cassino (FR) - via Tommaso Campanella, in zona centrale adicente a tutti i servizi, proponiamo in esclusiva la vendita di un bellissimo attico in fase di ristrutturazione, situato al sesto piano di un elegante edificio nel centro della città.
Con una superficie di circa 75 mq, l'appartamento offre un ingresso luminoso che conduce a un soggiorno accogliente con angolo cottura. La camera matrimoniale e la cameretta garantiscono spazio e privacy, mentre i due bagni moderni (di cui uno in camera) sono pensati per il massimo comfort. Completa la proprietà l'ampio ed esclusivo terrazzo panoramico di circa 200 mq con possibilità di pergotenda di circa 30 mq.
Dotato di ottime finiture di ultima generazione;cappotto termico esterno, infissi a taglio termico, portone blindato,impianto termico a radiatori, impianto elettrico con predisposizione fotovoltaico e impianti di climatizzazione.

Ottima soluzione abitativa.

Prezzo di vendita richiesto euro 155.000,00.

Per maggiori informazioni e/o per fissare un appuntamento con un consulente dedicato:
Agenzia Dimensionecasa Immobiliare
Telefono/Whatsapp 0776/1931049 - 3802069646
Cassino(FR), Largo Dante, 17
Piedimonte San Germano (FR), Via Quarto, 9
Telefono/Whatsapp 0776/274295 - 3773392072
sito: immobiliaredimensionecasa. com

Visita il nostro sito: immobiliaredimensionecasa.com avrai modo di visualizzare maggiori dettagli su questa soluzione, e potrai visualizzare tutte le offerte attualmente disponibili sia in vendita che in locazione. Inoltre avrai modo di analizzare i nostri servizi, pagine dedicate a chi abbia un immobile da vendere o da dare in locazione, sezione dedicata a valutazioni immobiliari con possibilità di richiedere una valutazione online o fissare un sopralluogo con un consulente, infine troverai tutte le informazioni sulla nostra agenzia e dei vantaggi competitivi per chi si affidi alla nostra assistenza.

Professionalità, serietà e cortesia da sempre alla base del nostro impegno.

N.B. Nonostante si impieghi la massima cura nella compilazione degli annunci, si ricorda che gli stessi potrebbero presentare errori e/o omissioni. Pertanto il presente annuncio non costituisce vincolo contrattuale.